Меню

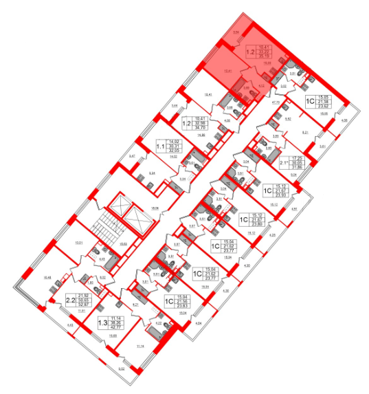
1-комнатная 35.19 м²

ID 448703, ЖК Pulse Premier, жилой комплекс Пульс Премьер Невский район Санкт-Петербург

Количество комнат: 1-комнатная

Общая площадь: 35.19 м²

Жилая площадь: 0 м²

Площадь кухни: 15 м²

Этаж: 9 / 15

Отделка квартиры: Чистовая

Тип жилья: Комфорт

Очередь: 3

Тип здания: Кирпич/Монолит

Цена за квадратный метр: 277494 ₽/м²

Цена для вас: 9765000.00000000 ₽

Доп. скидка: 9765000 ₽

Рыночная цена: 11230000 ₽

Цена в договоре: 9200000 ₽

Форма договора: Уступка с ДДУ

Возможность ипотеки: Да

Срок сдачи: 3 кв. 2025

Адрес квартиры: жилой комплекс Пульс Премьер Невский район Санкт-Петербург

Корпус: 3.2

Координаты на карте: 59.904557, 30.446464

Ближайшая станция метро: Проспект Большевиков, Улица Дыбенко

Расстояние до метро: От 2 км до 3 км

Название ЖК: Pulse Premier

Название района: Невский

Застройщик: Setl City

К ЖК В каталог