Меню

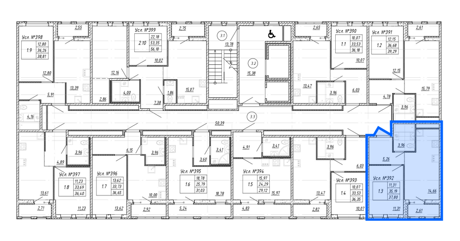
1-комнатная 36.5 м²

ID 453239, ЖК Мурино Space, Мурино ул Шоссе в Лаврики

Количество комнат: 1-комнатная

Общая площадь: 36.5 м²

Жилая площадь: 0 м²

Площадь кухни: 14.66 м²

Этаж: 7 / 17

Отделка квартиры: Чистовая

Тип жилья: Комфорт

Очередь: 1

Тип здания: Кирпич/Монолит

Цена за квадратный метр: 202466 ₽/м²

Цена для вас: 7390000.00000000 ₽

Доп. скидка: 7390000 ₽

Рыночная цена: 8425000 ₽

Цена в договоре: 6900000 ₽

Форма договора: Уступка с ДДУ

Возможность ипотеки: Да

Срок сдачи: Заселение

Адрес квартиры: Мурино ул Шоссе в Лаврики

Корпус: 5

Координаты на карте: 60.0589064309637,30.46471079432034

Ближайшая станция метро: Девяткино

Расстояние до метро: От 2 км до 3 км

Название ЖК: Мурино Space

Название района: Девяткино

Застройщик: ЦДС

К ЖК В каталог