Меню

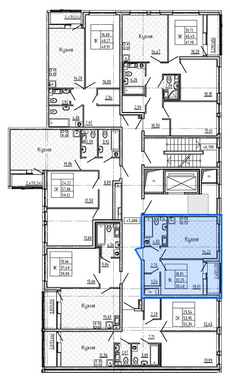
1-комнатная 33.48 м²

ID 447877, ЖК Master Place, пр-т Маршала Блюхера 97

Количество комнат: 1-комнатная

Общая площадь: 33.48 м²

Жилая площадь: 0 м²

Площадь кухни: 10.01 м²

Этаж: 3 / 7

Отделка квартиры: Чистовая

Тип жилья: Комфорт

Очередь: 1

Тип здания: Кирпич/Монолит

Цена за квадратный метр: 251494 ₽/м²

Цена для вас: 8420000.00000000 ₽

Доп. скидка: 8420000 ₽

Рыночная цена: 9685000 ₽

Цена в договоре: 7900000 ₽

Форма договора: Уступка с ДДУ

Возможность ипотеки: Да

Срок сдачи: Заселение

Адрес квартиры: пр-т Маршала Блюхера 97

Корпус: 1

Координаты на карте: 59.978027, 30.376023

Ближайшая станция метро: Лесная

Расстояние до метро: От 2 км до 3 км

Название ЖК: Master Place

Название района: Калининский

Застройщик: РСТИ

К ЖК В каталог