Меню

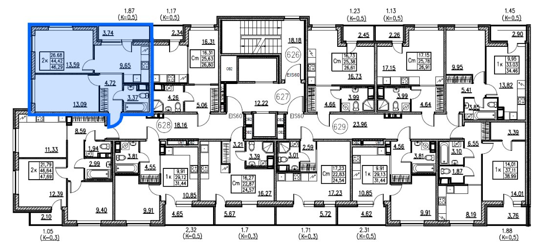
2-комнатная 46.29 м²

ID 446962, ЖК iD Kudrovo, проспект Строителей 1к2 Кудрово Заневское городское поселение Всеволожский район Ленинградская область

Количество комнат: 2-комнатная

Общая площадь: 46.29 м²

Жилая площадь: 0 м²

Площадь кухни: 9.65 м²

Этаж: 8 / 12

Отделка квартиры: Предчистовая

Тип жилья: Комфорт

Очередь: 4

Тип здания: Кирпич/Монолит

Цена за квадратный метр: 184166 ₽/м²

Цена для вас: 8525000.00000000 ₽

Доп. скидка: 8525000 ₽

Рыночная цена: 9720000 ₽

Цена в договоре: 8000000 ₽

Форма договора: Уступка с ДДУ

Возможность ипотеки: Да

Срок сдачи: Заселение

Адрес квартиры: проспект Строителей 1к2 Кудрово Заневское городское поселение Всеволожский район Ленинградская область

Корпус: 4.2

Координаты на карте: 59.923626, 30.519902

Ближайшая станция метро: Улица Дыбенко

Расстояние до метро: Более 3 км

Название ЖК: iD Kudrovo

Название района: Кудрово

Застройщик: Euroinvest Development

К ЖК В каталог