Меню

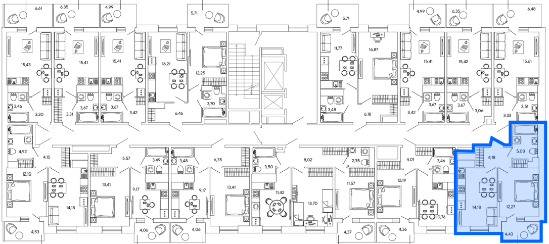
1-комнатная 37.88 м²

ID 451187, ЖК Аквилон STORIES, жилой комплекс Аквилон Сторис Кудрово Заневское городское поселение Всеволожский район Ленинградская область

Количество комнат: 1-комнатная

Общая площадь: 37.88 м²

Жилая площадь: 0 м²

Площадь кухни: 14.18 м²

Этаж: 6 / 12

Отделка квартиры: Предчистовая

Тип жилья: Комфорт

Очередь: 2

Тип здания: Кирпич/Монолит

Цена за квадратный метр: 179515 ₽/м²

Цена для вас: 6800000.00000000 ₽

Доп. скидка: 6800000 ₽

Рыночная цена: 7820000 ₽

Цена в договоре: 6330000 ₽

Форма договора: Уступка с ДДУ

Возможность ипотеки: Да

Срок сдачи: 2 кв. 2025

Адрес квартиры: жилой комплекс Аквилон Сторис Кудрово Заневское городское поселение Всеволожский район Ленинградская область

Корпус: 1

Координаты на карте: 59.922584, 30.525019

Ближайшая станция метро: Улица Дыбенко

Расстояние до метро: Более 3 км

Название ЖК: Аквилон STORIES

Название района: Кудрово

Застройщик: Аквилон

К ЖК В каталог